
Stunning Bungalow with Loft in One of Carleton Place’s Most Sought-After Neighborhoods
Nestled in a welcoming and friendly community, this exceptional bungalow with loft boasts remarkable curb appeal with a full brick-front exterior and a well-maintained driveway. This home perfectly balances main-floor convenience with expanded living space, making it ideal for families, professionals, or those looking to downsize without compromising on space.
Upon entering, you’ll be greeted by gleaming hardwood floors, elegant neutral tones, and an abundance of natural light streaming in through the large windows. A charming sitting area off the foyer provides a cozy retreat, perfect for morning coffee or welcoming guests.
Main Floor Highlights:
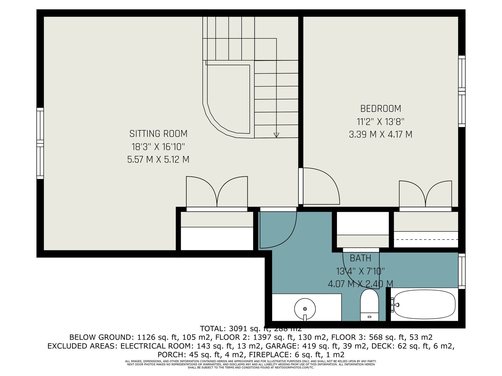
Loft-Level Living:
Fully Finished Lower Level:
This home is immaculately maintained, showcasing pride of ownership at every turn. Whether you’re seeking one-level living with added space for family and guests or an ideal layout for multi-generational living, this property is designed to accommodate all life situations.
Don’t miss this rare opportunity to own a versatile and beautifully designed home in Carleton Place’s premier community!
Contact us today to book your private showing! 613-897-5593