Photos
3D Tour
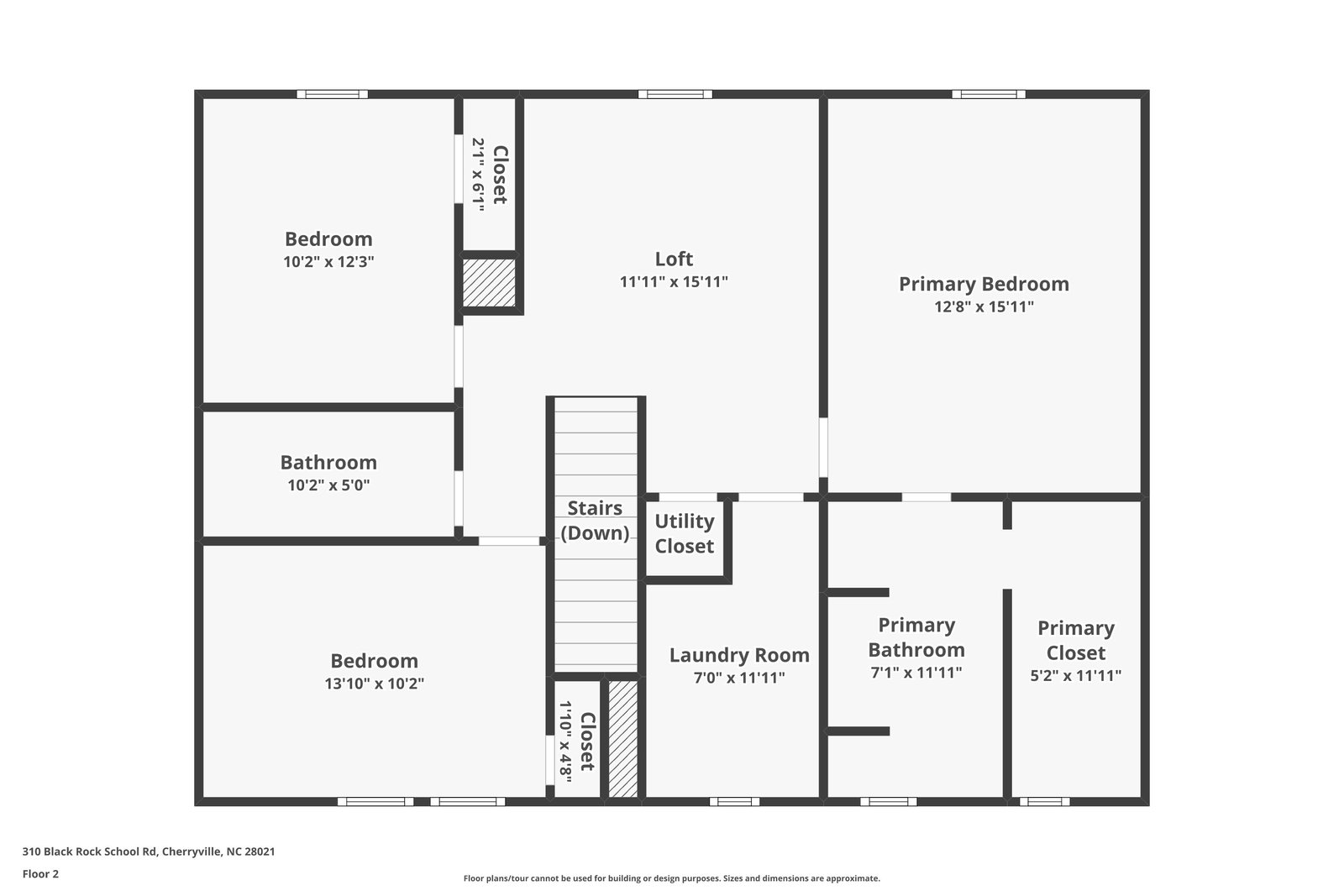
Floor Plans
Map
310 Black Rock School Road
Cherryville, NC 28021
Presented By
John Bolos
Company
John Bolos Real Estate Group
Phone
7047778090
Email
john@jbolos.com
Get in Touch
310 Black Rock School Road
Cherryville, NC 28021
